|  | 
            
                
                    | Двухкомнатная квартира по ул. Планетная, 7 в Москве |  
                        | Цена | 22 299 999 р. (398 214 р./м2) Подать заявку на ипотеку
 |  
                        | Адрес | Планетная, 7 |  
                        | Этаж | 3/5 |  
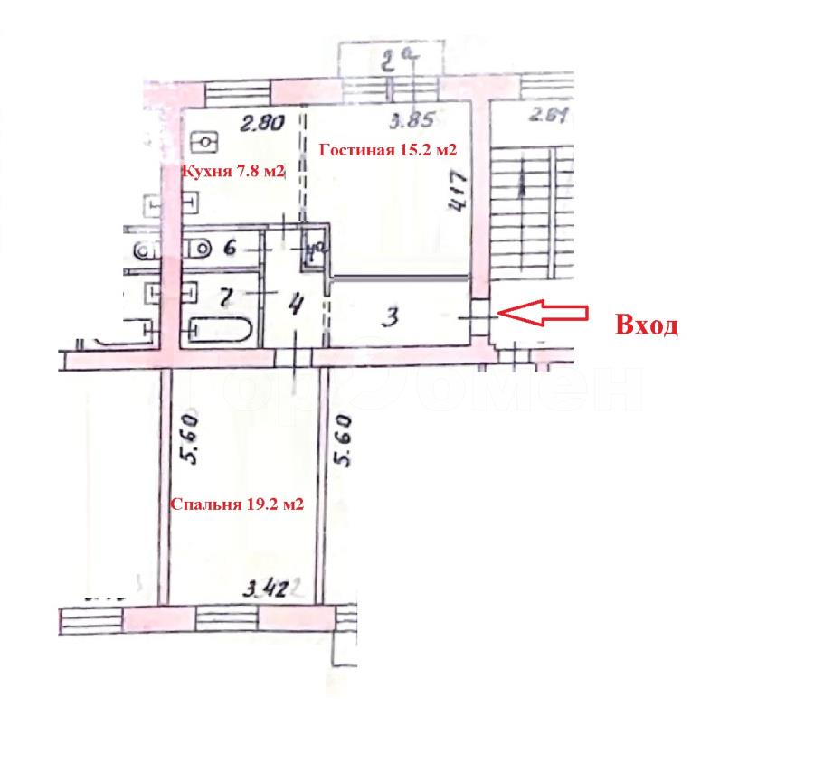
                        | Площадь | общая 56 м2, жилая 34,4 м2, кухни 7,8 м2 |  
                        | Кол-во комнат | Двухкомнатная |  
                        | ОПЕРАТИВНЫЙ ПОКАЗ! ПОЛНАЯ СУММА В ДОГОВОРЕ!ОДИН ВЗРОСЛЫЙ СОБСТВЕННИК! БЕЗ ОБРЕМЕНЕНИЯ!
          Продаю ШИКАРНУЮ ДВУХКОМНАТНУЮ квартиру на 3 этаже 5 этажного Кирпичного дома  в стороне от основных дорог в окружении деревьев.
         Общая площадь квартиры 56 м2. Светлая гостиная 15.2 м2 с выходом на застекленный балкон. Просторная спальня 19.2 м2. Уютная кухня 7.8 м2. Раздельный санузел! Высокие потолки2.8 м.
        В квартире сделан качественный дизайнерский ремонт с зонированием пространства и использованием дорогих и экологически чистых материалов. Электрика и сантехника заменены на новую! В зимнее время батареи топят очень хорошо! Мощный кондиционер поможет жарким летом.
        В доме производился капитальный ремонт с заменой всех коммуникаций и электрики в 2021 году.
       Квартира укомплектована всей необходимой дорогой европейской мебелью и бытовой техникой.
       ПОДЪЕЗД ЧИСТЫЙ БЕЗ ПОСТОРОННИХ ЗАПАХОВ.
       Большая детская площадка. Много парковочных мест вокруг дома.
       Развитая и сложившаяся инфраструктура в шаговой доступности: школы и сады, взрослая  и детская поликлиники, сетевые супермаркеты (Пятёрочка, ВкусВилл, Мираторг, Азбука вкуса), салоны красоты, аптека, пекарня, кафе и рестораны, фитнес-клуб с тренажёрным залом, остановка общественного транспорта, благоустроенный Петровский парк, станции метро Динамо, Петровский Парк,  Аэропорт и Гражданская и многое другое.
Помогаем в получение и  снижение процентов по ипотеке!
ОПЕРАТИВНЫЙ ПОКАЗ!
ПОЛНАЯ СУММА В ДОГОВОРЕ!
ОДИН ВЗРОСЛЫЙ СОБСТВЕННИК! 
БЕЗ ОБРЕМЕНЕНИЯ!
В 10 минутах пешком от метро Аэропорт, Динамо и Петровский парк. |  
                
                    | Описание дома |  
                        | Этажность дома | 5 |  | 
                        
                         
                        Объявление № 23506907 Дата подачи:29 октября 2025 г. 4:15
 Дата обновления:29 октября 2025 г. 4:15
 
                        
                        Просмотров 2
                        Хотите продать быстрее? |